济南格艾特仪器设备有限公司
组培室规划设计建设服务商
全国服务热线:
138-6419-7126
0531-87595725
首页
关于我们
组培工程
组培工程
组培净化
组培设备
培养基灌装机
接种灭菌器
蒸汽灭菌器
净化工作台
组培架
组培灯
组培试剂
组培工具
常用组培仪器
组培耗材
组培洗瓶机
组培瓶
工程案例
新闻中心
公司新闻
行业动态
常见问题解答
视频专区
联系我们
当前位置:
组培工程
>
组培工程
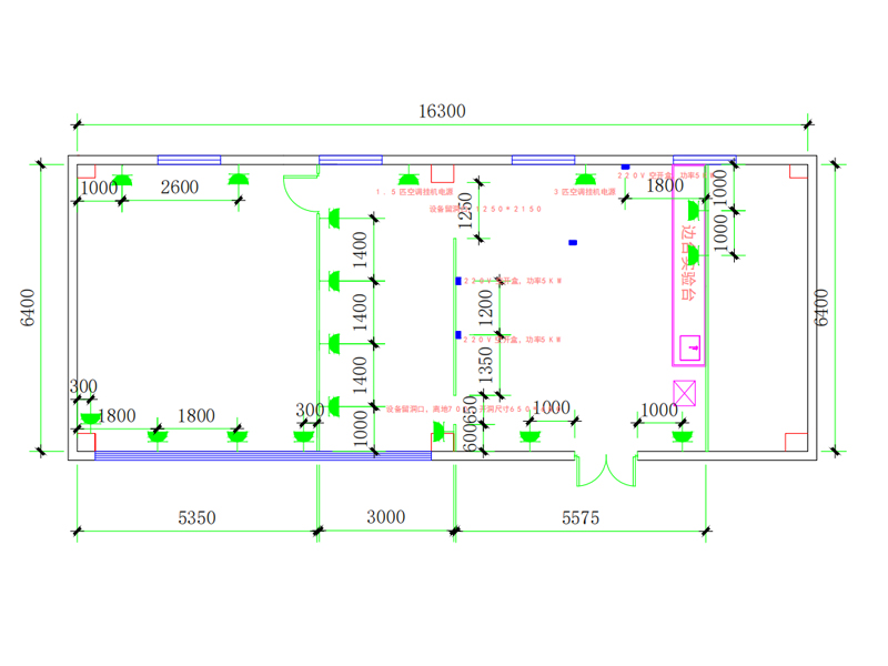
句容组培室电路模拟图
产品详情
相关
产品
行业
动态
接种器灭菌器发挥着哪些重要作用
组培设备:组培玻璃瓶如何灭菌?
组培室设计与建设考虑因素
组培室设计的方向参考
map